Rent Max Offices 2016

Progettazione e Consulenza D'Arredo

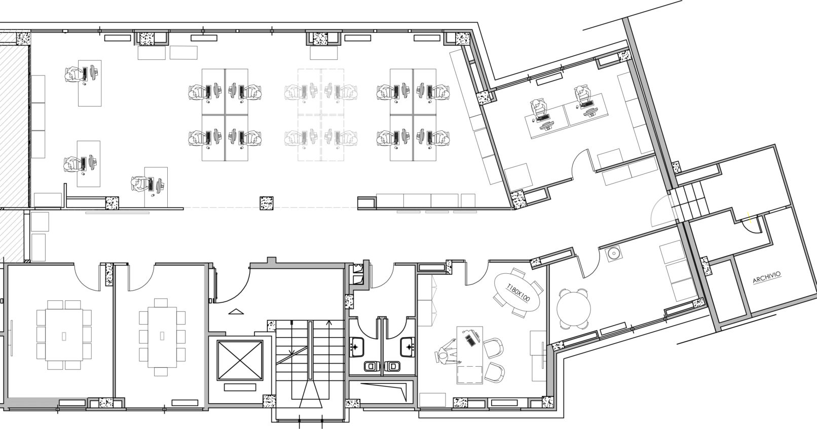
Rent Max Offices

Dal 2012 circa noi di In Art Design ci occupiamo della progettazione e della consulenza per arredo degli uffici della Rent Max in tutta Italia (Roma – Milano – Napoli) . Il nostro ultimo progetto corrisponde alla progettazione della nuova sede in Via Cristoforo Colombo. Gli elementi che oggi caratterizzano tutte le loro sedi (colori e finiture) sono state scelte da noi di In Art Design.

Anno di Realizzazione nuova sede in via Cristoforo Colombo: 2016